Einzelne Büros in modernem Businesspark – Gesamt: 124,5 m²

Amalienbadstr., 76227 Karlsruhe (Durlach)

Ausstattung

Parkplatz

WLAN

Küche

Postadresse

Reinigung

24/7

Meetingraum

Drucker/Kopierer

Kaffee/Teeflat

Barrierefrei

Empfang

Hunde erlaubt

Weitere Ausstattungsmerkmale:
Parkplätze: Öffentliche Parkplätze vorhanden, privater Stellplatz nach Absprache.

WLAN: inklusive.

LAN-Anschluss: nicht vorhanden.

Küche: kleine Teeküche zur Nutzung.

Postanschrift: Mitnutzung des Briefkastens nach Absprache möglich.

Reinigung: Raum ist besenrein zu verlassen.

24/7 Zugang: nach Schlüsselübergabe möglich.

Meetingräume: zwei Besprechungsräume (50 m² und 28 m²) stehen nach Absprache zur Verfügung.

Drucker/Kopierer: Nutzung nach Absprache möglich.

Firmenschild: aktuell nicht vorgesehen.

Kaffee-/Teeflatrate: Kaffee, Tee und Wasser sind gegen Pauschale verfügbar.

Barrierefreiheit: Aufzug vorhanden, Gebäude ist barrierefrei zugänglich.

Empfang: während der üblichen Bürozeiten (9:00–17:00 Uhr) besetzt.

Hunde erlaubt: erzogene Hunde sind willkommen.

Sanitäre Anlagen: selbstverständlich vorhanden.

Bürobeschreibung

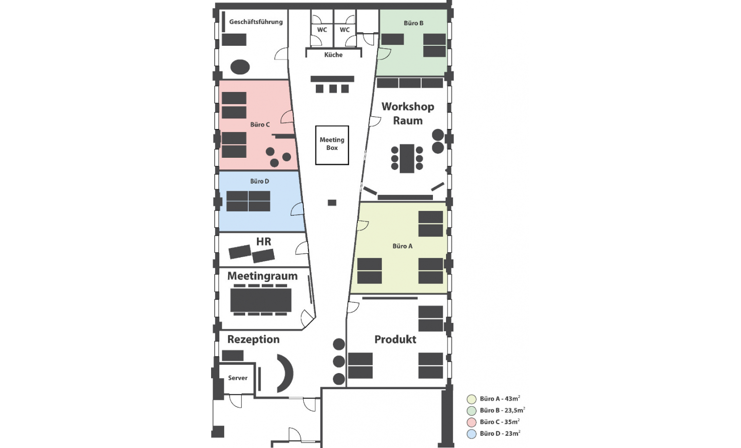
In unserer modernen Bürofläche (Gesamtgröße: 461 m²) steht ein großzügiger Teil zur Untervermietung bereit. Wir selbst nutzen aktuell nur rund ein Drittel der Fläche – ideal also für Unternehmen oder Teams, die eine repräsentative Büro-Umgebung suchen, ohne die komplette Fläche alleine tragen zu müssen.

Verfügbare Flächen & Ausstattung:

Gemeinschaftsflächen (ca. 175 m²): Empfangsbereich, Flur, Meetingbox, Küche, Sanitäranlagen

Optional nutzbar: Zwei moderne Meetingräume (ca. 78 m²)

Helle, offene Räume in inspirierender Arbeitsumgebung

Moderne Infrastruktur in der bekannten Raumfabrik Durlach

Konditionen:

Keine Gewinnerzielung, reine Aufteilung der Mietkosten

Flexible Absprache zur Nutzung der Flächen

Besichtigung jederzeit nach Vereinbarung möglich

Kontakt:

Bei Interesse oder Fragen freue ich mich über Ihre Kontaktaufnahme per Telefon oder E-Mail.

Branche: IT

Etage: 3

Lage des Büros

Fußläufig erreichbar

Einkaufen

Öffentliche Verkehrsmittel

Grünfläche

Restaurants

Parkmöglichkeiten

Innerhalb einer halben Stunde zu erreichen

Hauptbahnhof

Autobahn

Flughafen

Weitere Infos:
Unser Büro befindet sich in einem lebenswerten und modern ausgestatteten Businesspark mit über 80.000 m² Fläche in 21 Gebäuden. Der Campus vereint Industriecharme mit hoher Funktionalität, und auf dem Gelände gibt es Parkhäuser und Tiefgaragen für Mitarbeiter und Besucher.

In fußläufiger Nähe (wenige Minuten):

Öffentliche Verkehrsmittel:
Die nächstgelegene Haltestelle liegt etwa 2 Minuten zu Fuß vom Büro entfernt.

Gastronomie & Restaurants:
Direkt auf dem Gelände befindet sich das Borsalino Ristorante & Pizzeria (Italienisch).
Weitere Lokale wie das Gasthaus Zum Auerhof oder das Vogel Hausbräu sind in weniger als 5 Minuten erreichbar – ideal für die Mittagspause oder Geschäftstreffen.

Einkauf & Nahversorgung:
Rund um den Campus gibt es Supermärkte, Apotheken, Dienstleister (z. B. Friseure), Arztpraxen sowie Poststellen.

Grünflächen & Umgebung:
Der Campus selbst verfügt über Innenhöfe und begrünte Dachflächen, die sich zum Verweilen eignen. In der Umgebung liegt der Turmberg mit Wanderwegen und Aussichtspunkten.

Parkmöglichkeiten:
Direkt auf dem Gelände sind Parkhäuser und Parkflächen ausgewiesen. Mehrere Ein- und Ausfahrten ermöglichen unkomplizierte Zufahrten über die Amalienbadstraße und An der Raumfabrik.

In ca. 30 Minuten erreichbar (unter günstigen Bedingungen):

Karlsruher Hauptbahnhof:
Unter idealen Verkehrsbedingungen in etwa 5–15 Minuten erreichbar (Auto oder ÖPNV).

Flughafen Karlsruhe / Baden-Baden (FKB):
Fahrzeit rund 20–30 Minuten mit dem Auto.

Autobahnanbindung:
Die Autobahnen A5 und A8 sind in sehr kurzer Fahrzeit zu erreichen und machen den Standort auch für überörtliche Anreisen attraktiv.

Anbieter kontaktieren

Alle Büros bei shareDnC sind für Mieter provisionsfrei. Deine Anfrage ist unverbindlich.

Büroraum 1 (möbliert)
All-incl.-Miete (netto): 860,-€
Fläche: 43m2
Max. Arbeitsplätze: 9
Verfügbar ab: Sofort

Mindestlaufzeit:  1 Monat
Kündigungsfrist:  2 Wochen zum Monatsende
Kaution:  Keine

Büroraum 2 (möbliert)
All-incl.-Miete (netto): 470,-€
Fläche: 23m2
Max. Arbeitsplätze: 4
Verfügbar ab: Sofort

Mindestlaufzeit:  1 Monat
Kündigungsfrist:  2 Wochen zum Monatsende
Kaution:  Keine

Büroraum 3 (möbliert)
All-incl.-Miete (netto): 700,-€
Fläche: 35m2
Max. Arbeitsplätze: 4
Verfügbar ab: Sofort

Mindestlaufzeit:  1 Monat
Kündigungsfrist:  2 Wochen zum Monatsende
Kaution:  Keine

Büroraum 4 (möbliert)
All-incl.-Miete (netto): 460,-€
Fläche: 23m2
Max. Arbeitsplätze: 4
Verfügbar ab: Sofort

Mindestlaufzeit:  1 Monat
Kündigungsfrist:  2 Wochen zum Monatsende
Kaution:  Keine

Standort

Über shareDnC
Service
© 2025 - shareDnC GmbH