WLAN
Internet
Küche
Postadresse
Reinigung
24/7
Meetingraum
Drucker/Kopierer
Firmenschild
Kaffee/Teeflat
Barrierefrei
Hunde erlaubt
Weitere Ausstattungsmerkmale:
eigener Garten mit Terrasse
Ein Firmenschild als auch die Belegung einer eigenen Klingel ist bei allen Optionen, ausgenommen einzelner Schreibtischplätze, möglich.
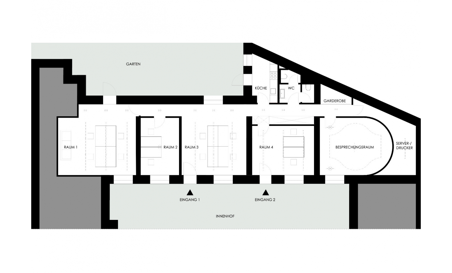
Die gesamte Einheit hat eine Größe von 160 m2, befindet sich in einem repräsentativen Altbau und wurde grundlegend neu saniert.
Durch den begrünten Innenhof gelangt man direkt in die Gewerbeeinheit im Hinterhaus. Die Bürofläche ist hochwertig ausgestattet, hat einen separaten Eingang als auch einen direkten Zugang zum privaten Garten hinter dem Gebäude.
Raum 1 (siehe Grundriss)
- 35 m2
- Raumhöhe 3,60 m
- eigener und direkter Zugang zum eigenen Garten
- Rolläden
- Eichenparkett
- Beleuchtung
- Sofa
- Whiteboard
- der Raum ist abschließbar
- Möblierung mit max. 4 Arbeitsplätzen
Betriebs- und Nebenkosten im Mietpreis inbegriffen
- Wasser mit und ohne Kohlensäure
- ausgestattete Küche
- Sanitärprodukte
- Büroreinigung
- Büroinhaltsversicherung
- Kabelinternet
Zu den einzelnen Flächen die hier angeboten werden kommen noch 60 m2 gemeinschaftsfläche inkl. Konferenzraum und Serverraum hinzu, siehe Grundriss.
Ein Firmenschild als auch die Belegung einer eigenen Klingel ist möglich.
Die gesamte Einheit hat eine Größe von 160 m2, befindet sich in einem repräsentativen Altbau und wurde grundlegend neu saniert.
Durch den begrünten Innenhof gelangt man direkt in die Gewerbeeinheit im Hinterhaus.
Das Büro ist hochwertig ausgestattet, hat einen separaten Eingang als auch einen direkten Zugang zum privaten Garten hinter dem Gebäude.
Es handelt sich um eine Untervermietung in unserem Büro, Mietzins zzgl. MwSt. — bei Bedarf stehen auch weitere Raum-Möglichkeiten zur Verfügung. Wenn bei Ihnen Interesse besteht, melden Sie sich gerne bei uns — wir freuen uns darauf, Sie persönlich kennenzulernen.
Branche: Andere
Fußläufig erreichbar
Einkaufen
Öffentliche Verkehrsmittel
Grünfläche
Restaurants
Parkmöglichkeiten
Weitere Infos:
Kurfüstendamm und U-Bahnhof Spichernstraße
Du kannst maximal 10 Büros an einem Tag anfragen.
Mindestlaufzeit:
6 Monate
Kündigungsfrist:
3 Monate zum Monatsende
Kaution:
VB
Mindestlaufzeit:
12 Monate
Kündigungsfrist:
3 Monate zum Monatsende
Kaution:
VB
Um unseren Service in vollem Umfang nutzen zu können, bestätige bitte deine E-Mail Adresse. Dies ist besonders wichtig, damit wir dich über Antworten der Vermieter informieren können
Wenn du die E-Mail erneut zugesendet bekommen möchtest, gib bitte hier deine E-Mail Adresse ein
Es ist ein Fehler aufgetreten. Bitte versuche es später erneut oder wende dich an unseren Kundenservice: 0221 97581 300 oder per email: service@sharednc.com
Vielen Dank! Wir haben dir die E-Mail erneut zugesendet.
Bitte schaue in dein E-Mail Postfach und bestätige deine E-Mail Adresse. Sollte die E-Mail auch nicht im Spam Ordner gelandet sein, wende dich bitte an unseren Kundenservice.