Office Loft Unit Stuttgart Mitte _ S, M oder L

Hauptstaetterstr., 70178 Stuttgart (Mitte)

Ausstattung

WLAN

Internet

Küche

Postadresse

24/7

Meetingraum

Firmenschild

Möbliert

Hunde erlaubt

Bürobeschreibung

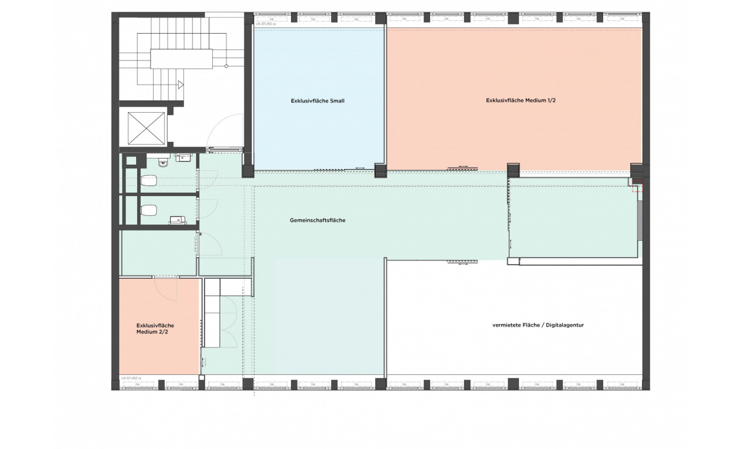
Flexible Büro Einheiten im 183 qm großen 3. Stock unseres Offices im Zentrum von Stuttgart.

Small: 21,5 qm Exklusivfläche + 14,5 qm Gemeinschaftsflächenanteil
Medium: 53,5 qm Exklusivfläche + 36,5 qm Gemeinschaftsflächenanteil
Large: 75 qm Exklusivfläche + 51 qm Gemeinschaftsflächenanteil (Small+Medium)

Der offene Gemeinschaftsbereich hat eine Gesamtgröße von ca. 75qm, inkl. Meetingraum (mit Monitor), Küche (mit Spülmaschine und Kühlschrank), Kopier-/Serverraum und getrennten Toiletten. Die Gemeinschaftsflächen werden mit einem Innenarchitekturstudio und eine Digitalagentur geteilt.

Die Fläche wurde Anfang 2015 vollständig renoviert.
CAT 7-Verkabelung, Elektrik, Böden, Wände usw. wurden komplett erneuert. Die Flächen verfügen über Schallschutz-Fenster und Außenjalousien. Geheizt wird über Fernwärme.

Das Angebot richtet sich an gewerbliche Mieter, die zum Vorsteuerabzug berechtigt sind.
Die Kaution beträgt 3-Brutto-Monatsmieten.
Die Nebenkosten betragen aktuell ca. 2,4€ pro qm und Monat.

Branche: Design und Grafik

Etage: 3

Lage des Büros

Fußläufig erreichbar

Einkaufen

Öffentliche Verkehrsmittel

Grünfläche

Restaurants

Parkmöglichkeiten

Innerhalb einer halben Stunde zu erreichen

Hauptbahnhof

Autobahn

Flughafen

Anbieter kontaktieren

Alle Büros bei shareDnC sind für Mieter provisionsfrei. Deine Anfrage ist unverbindlich.

Shared Office Medium (möbliert)
Objekttyp: Bürofläche
Mietpreis (netto): 1.600,-€ pro Monat
Fläche: 90m2
Max. Arbeitsplätze: 8
Verfügbar ab: Sofort

Mindestlaufzeit:  11 Monate
Kündigungsfrist:  3 Monate zum Monatsende
Kaution:  3KM

Shared Office Small (möbliert)
Objekttyp: Bürofläche
Mietpreis (netto): 650,-€ pro Monat
Fläche: 36m2
Max. Arbeitsplätze: 4
Verfügbar ab: 01.06.2026

Mindestlaufzeit:  11 Monate
Kündigungsfrist:  3 Monate zum Monatsende
Kaution:  3KM

Shared Office Large (möbliert)
Objekttyp: Bürofläche
Mietpreis (netto): 2.250,-€ pro Monat
Fläche: 126m2
Max. Arbeitsplätze: 12
Verfügbar ab: 01.06.2026

Mindestlaufzeit:  11 Monate
Kündigungsfrist:  3 Monate zum Monatsende
Kaution:  3KM

Standort

Über shareDnC
Service
© 2026 - shareDnC GmbH